The offer to purchase must meet or exceed the sale price.
Price
$150,000.00
Total Acreage
5.0800
County
Montague
Tract Number
14966
A Veteran or Military Member whose bid is accepted may apply for a VLB Land Loan at a 7.25% interest rate, with a 30-year term and minimum 5% down payment. The VLB will only finance up to 95% of the minimum bid or $200,000 whichever is less. Any amount offered over the minimum bid or $200,000.00 must be paid at closing by the awardee. The maximum loan amount offered through the VLB Land Loan Program may not exceed $200,000. Two veterans who are spouses and are individually eligible to participate in the land loan program and satisfy all program qualification and requirements, may be eligible to apply for a land loan to purchase the same tract of land (minimum of one net acre), and may borrow up to $275,000, with a minimum requirement of five percent down. FLS tracts may be pulled from the sale solely at the discretion of the Veterans Land Board.
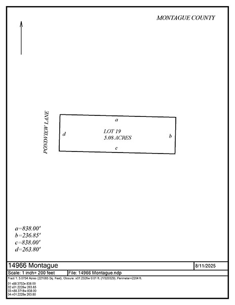
Legal Description
Lot 19, The Ranches at Blackjack Meadows, an addition to the County of Montage, Texas. Deed Dated 6/3/2025, Instrument# 2502588. CAD PID: R000026970
Tract Dimensions
a=838.00' b=236.85' c=838.00' d=263.80'
Location
From the intersection of Hwy 175 and Hwy 59 in Montague, TX, travel east on Hwy 59 for 2.0 miles to Noble Rd. Turn left on Noble Rd, travel north 1.2 miles to Fenoglio Rd. Turn right on Fenoglio Rd and travel east 0.4 miles to Aurelia School Rd. Turn left on Aurelia School Rd and travel north 0.6 miles to Blackjack Parkway. Turn right on Blackjack Parkway and travel east 0.9 miles to Pondview Lane. Turn left on Pondview Lane and the subject will be on the right. Approximate GPS Coordinates: 33.691648, -97.66195. The tract is not located within a flood plain.
Account Number
239005
Contact
VLB
1700 N. Congress Ave. Suite 810
Austin, TX 78701
800-252-8387
512-463-5060
vlbinfo@glo.texas.gov


